Škola u Brlogu dobiva novi život: Općina Proložac planira društveni dom za HGSS i udruge
Nekadašnja područna škola „Brlog“ u Prološcu Gornjem uskoro bi mogla dobiti novu namjenu, budući da Općina Proložac planira njezinu prenamjenu u društveni dom za potrebe HGSS i lokalnih udruga.
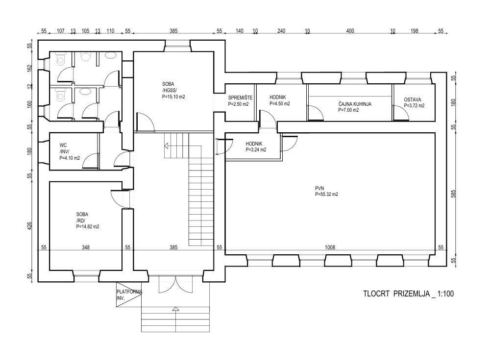
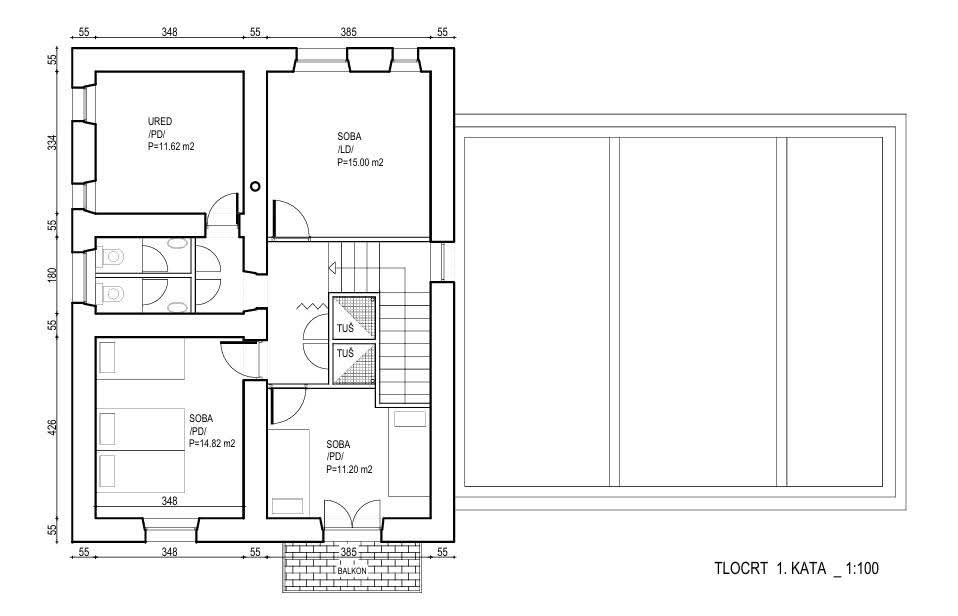
Prema planu, budući Društveni dom Brlog sadržavat će prostorije za rad udruga, sanitarne čvorove, tuševe, kuhinju, skladište, planinarske sobe za spavanje te veliki zajednički prostor namijenjen sastancima, druženjima i radionicama.
Idejno rješenje projekta izradila je arhitektica Ana Picukarić, a iz Općine navode kako je u tijeku rješavanje imovinsko-pravnih odnosa.
Načelnik Toni Garac istaknuo je kako zemljište na kojem se objekt nalazi trenutno nije u vlasništvu Općine, već Republike Hrvatske, zbog čega je pokrenuta procedura darovanja putem Splitsko-dalmatinske županije.
„Nakon rješavanja vlasništva slijedi izrada preostale projektno-tehničke dokumentacije te prijava na fondove za financiranje“, poručio je Garac.
Iz Općine naglašavaju kako bi realizacija ovog projekta značajno doprinijela razvoju društvenog i volonterskog života u Prološcu, posebno u segmentu djelovanja udruga i službi spašavanja.













Foto: Opčina Proložac